Interior Design in collaboration with Garrison Design Office
Visualization: Paul Ramirez Design
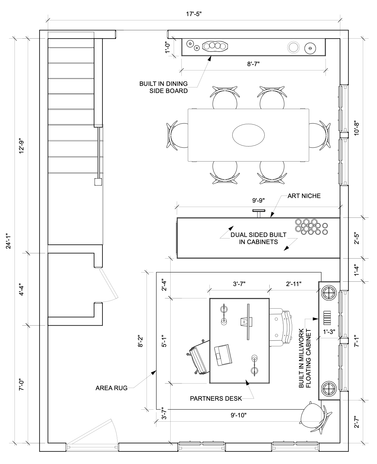
Detailed Millwork
This sophisticated space features custom millwork and cabinetry, dividing the client's entry room into a home office and dining room. Warm wooden flooring and ample natural light create a productive and serene environment.
